Beukenlaan 13 - Etten-leur

€ 300.000 k.k.
Brochure
Beukenlaan 13 • 4871 VG ETTEN-LEUR
Bram Esvelt
Jouw expert Bram Esvelt T 076-5937000 Contacteer Bram Esvelt

Meer over
deze woning

*Gezien de grote belangstelling is het niet mogelijk om deze woning te bezichtigen. Stuur een e-mail naar info@schalkmakelaardij.nl wanneer u op de wachtlijst geplaatst wil worden.*
Deze tussenwoning met vrijstaande berging ligt in een groene en rustige woonwijk van Etten-Leur waar je je al snel thuis voelt. Een fijne plek voor starters en gezinnen die graag alles dichtbij hebben. Op nog geen tien minuten fietsen sta je in het winkelcentrum voor de dagelijkse boodschappen, terwijl scholen, sportvoorzieningen en speelplekken zich op korte afstand bevinden. Ook het centrum en de uitvalswegen zijn vlot bereikbaar, wat zorgt voor een prettige combinatie van rust en bereikbaarheid. De woning biedt een goede basis voor wie graag de handen uit de mouwen steekt. Het geheel vraagt om modernisering, maar juist dat maakt het een huis waar je echt iets eigens van kunt maken en je woonwensen volledig tot leven kunt brengen. Als extra pluspunt is de achtertuin zonnig gelegen op het zuiden, een fijne plek om van de zon te genieten en buiten te leven. Een woning met potentie op een aantrekkelijke locatie waar je stap voor stap jouw ideale thuis kunt creëren. Maak snel een afspraak voor een bezichtiging!

Download de brochure voor meer informatie. 
.
Neem contact op Meer weten over deze woning?

Details van
de woning

Type
Tussenwoning
Bouwjaar
1971
Perceeloppervlakte
166 m2
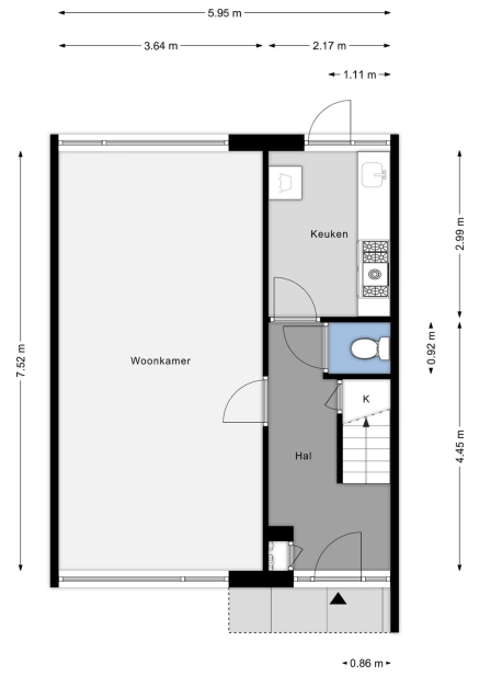
Woonoppervlakte
111 m2
Inhoud
388 m3
Isolatie
Dubbel glas
Energielabel
C