Biesveld 4 - Rijsbergen

€ 585.000 k.k.
Brochure
Biesveld 4 • 4891 NW RIJSBERGEN
Bram Esvelt
Jouw expert Bram Esvelt T 076-5937000 Contacteer Bram Esvelt

Meer over
deze woning

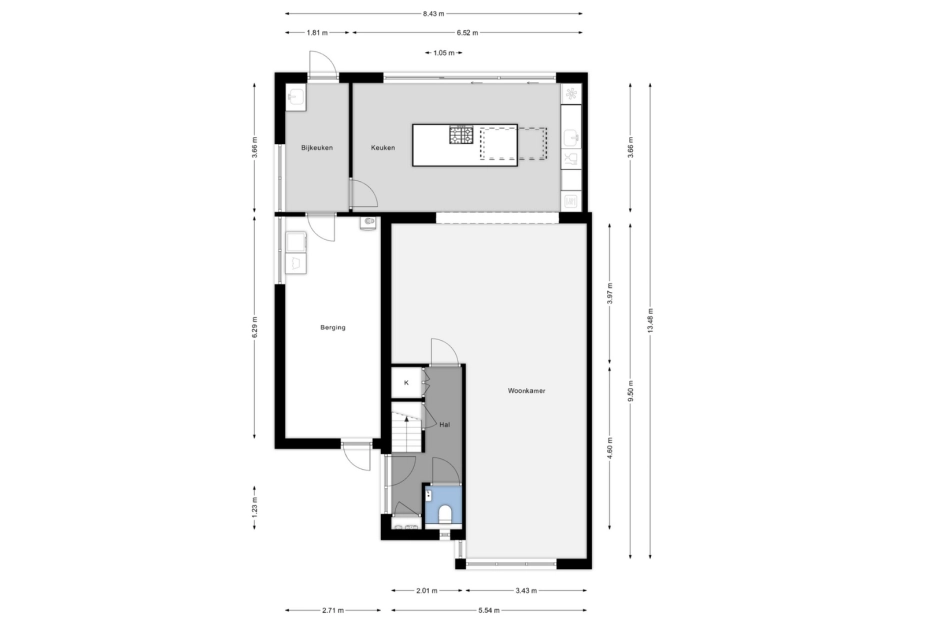
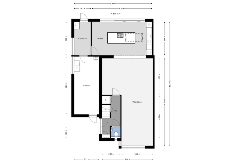
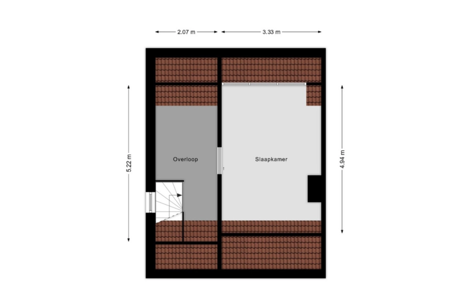
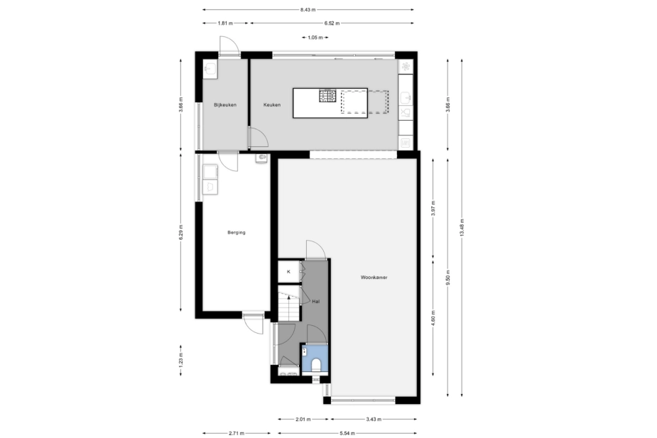
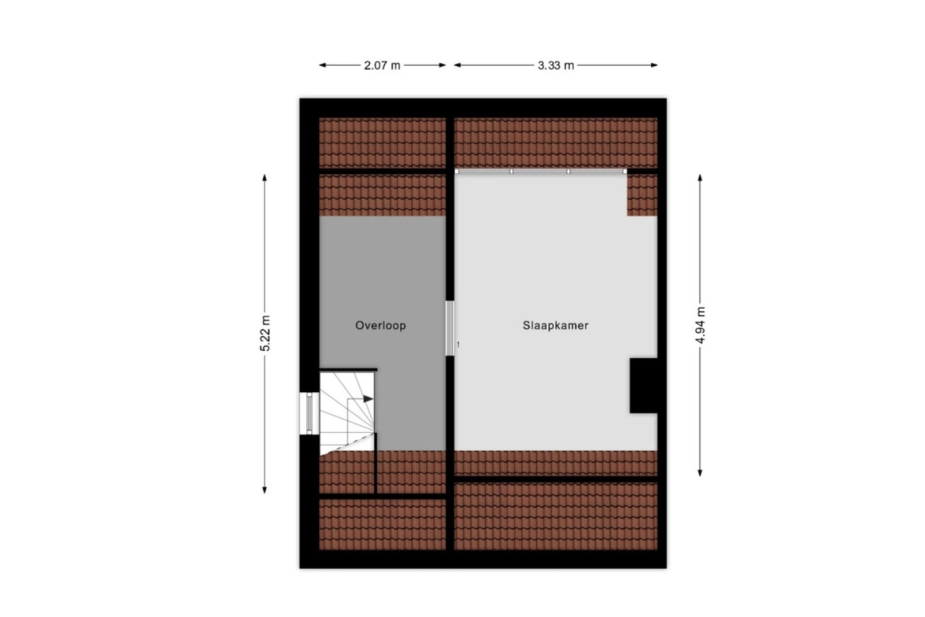
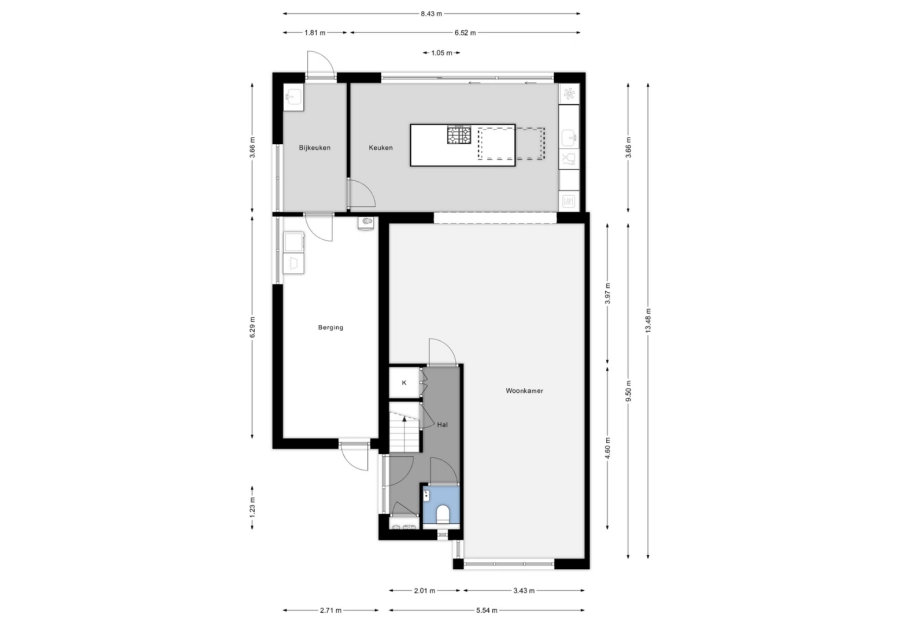
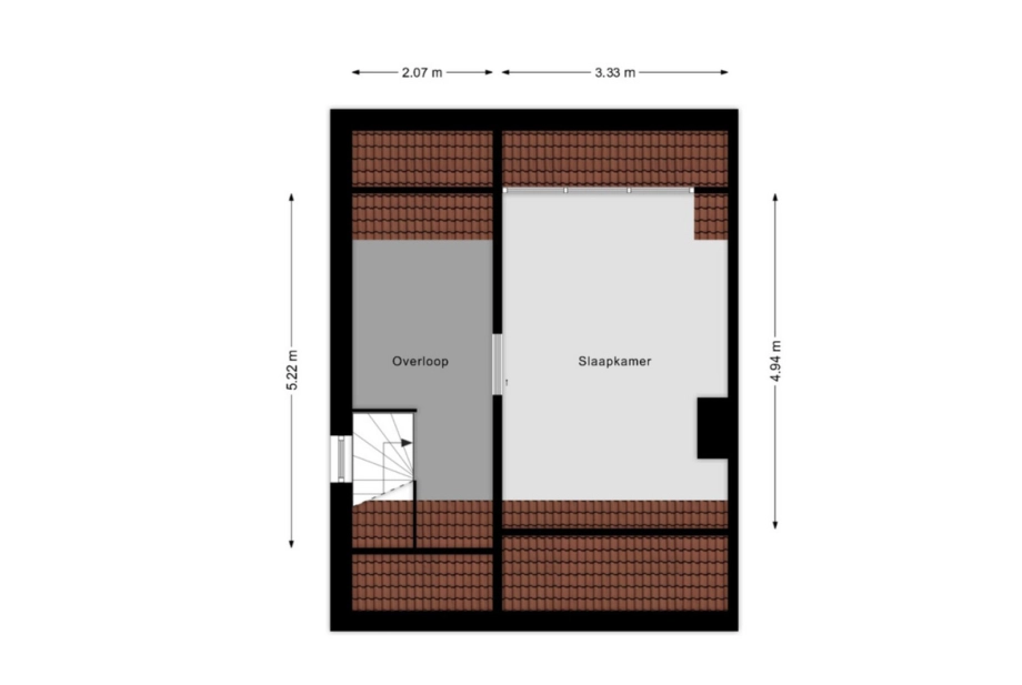
Wonen aan het Biesveld 4 betekent genieten van ruimte, comfort en een eigentijdse uitstraling op een heerlijke, rustige én kindvriendelijke locatie. Op loopafstand vind je de bushalte richting Breda en Zundert, het gezellige dorpscentrum met alle voorzieningen en meerdere speelweides. Deze royale twee-onder-een-kapwoning met eigen oprit en maar liefst 171 m² woonoppervlakte biedt alles wat je zoekt: een ruime living met veel lichtinval, een stijlvolle keuken uit 2022 met kook-/ziteiland en dubbele schuifpui, vier slaapkamers, een lichte badkamer en een complete tweede verdieping met airco en een fijne master bedroom. De woning is tot in detail praktisch ingedeeld. De voormalige garage is omgebouwd tot een handige (opslag)berging met wasruimte en directe toegang tot de bijkeuken, terwijl buiten de diepe tuin van circa 21 meter je dagelijks laat genieten van rust en het buitenleven. Het ruime terras, het speelgazon, de automatische beregeningsinstallatie en achterom maken het geheel compleet. Dankzij de 11 zonnepanelen, airco, vloerverwarming, grotendeels kunststof kozijnen én goede isolatie is het huis bovendien energiezuinig en comfortabel in elk seizoen. Hier woon je ruim, modern en met alles binnen handbereik. Een ideale plek voor wie op zoek is naar een fijne gezinswoning met klasse in het geliefde Rijsbergen! 

Download de brochure voor meer informatie. 
 
Neem contact op Meer weten over deze woning?

Details van
de woning

Type
Twee onder een kapwoning
Bouwjaar
1995
Perceeloppervlakte
340 m2
Woonoppervlakte
171 m2
Inhoud
660 m3
Isolatie
Dakisolatie Muurisolatie Vloerisolatie
Energielabel
A