de Brand 4 - Rucphen

€ 1.250.000 k.k.
Brochure
de Brand 4 • 4715 PS RUCPHEN
Bram Esvelt
Jouw expert Bram Esvelt T 076-5937000 Contacteer Bram Esvelt

Meer over
deze woning

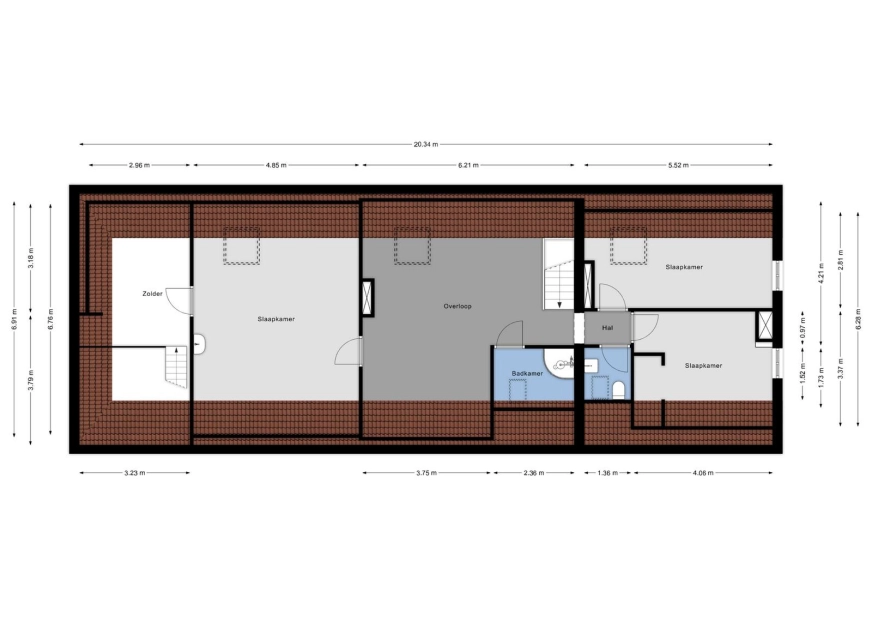
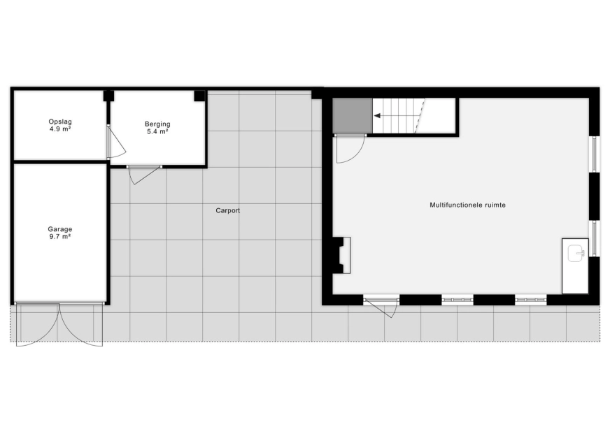
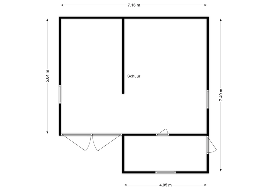
Schitterende en authentieke vrijstaande langgevelboerderij met diverse bijgebouwen op een ruim perceel van 4.545 m², gelegen op een werkelijk prachtige locatie in het buitengebied van Rucphen. De rust, de ruimte én het vrije uitzicht maken dit tot een unieke plek om te wonen. Bovendien liggen de Rucphense bossen op korte afstand, ideaal voor natuurliefhebbers en buitengenieters. Ook de gezellige dorpskern is op korte afstand bereikbaar. Deze karaktervolle boerderij biedt niet alleen sfeer en charme, maar ook een zee aan ruimte. Het royale woonoppervlak is verdeeld over meerdere volwaardige leefruimtes, waaronder een riante living, een gezellige woonkeuken, een tuinkamer en een slaapkamer met badkamer op de begane grond. Op de eerste verdieping bevinden zicht meerdere slaapkamers en een tweede badkamer. De vrijstaande schuur voegt daar nog extra gebruiksruimte aan toe, met onder 
andere een authentieke wijnkelder en een multifunctionele verblijfsruimte. Perfect voor werk, hobby, ontspanning of opslag! 

De tuin is een waar buitenparadijs. Vanaf het terras kijk je uit over het weidse landschap, met in de verte grazende koeien, die het idyllische landschap compleet maken. Het grote (speel)gazon biedt volop plek voor ontspanning of buitenactiviteiten, terwijl de kleurrijke borders en volwassen bomen zorgen voor 100 % privacy. Je hoort het zachte ruisen van de bladeren en het gezang van vogels, en ervaart ieder moment van de dag de natuurlijke stilte om je heen. Of je nu tot laat buiten zit in de avondzon of simpelweg wegdroomt bij het uitzicht: dit is buitenleven op z’n best!  

Maak snel een afspraak voor een bezichtiging! 
Neem contact op Meer weten over deze woning?

Details van
de woning

Type
Vrijstaande woning
Bouwjaar
1864
Perceeloppervlakte
4545 m2
Woonoppervlakte
240 m2
Inhoud
996 m3
Isolatie
Gedeeltelijk dubbel glas
Energielabel
D