De Heul 44 a - Hoeven

€ 850.000 k.k.
Brochure
De Heul 44a • 4741 TT HOEVEN
Bram Esvelt
Jouw expert Bram Esvelt T 076-5937000 Contacteer Bram Esvelt

Meer over
deze woning

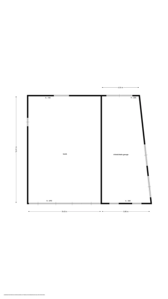
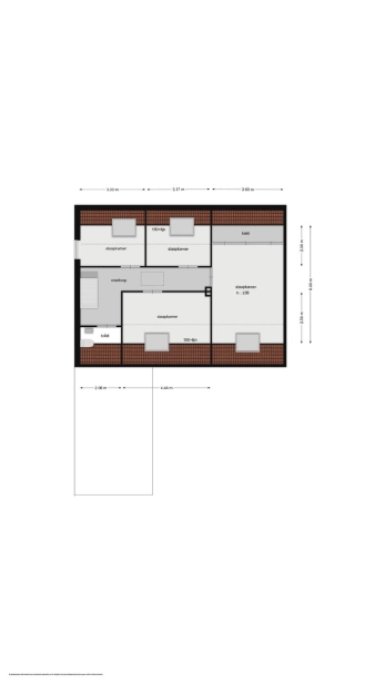
Op zoek naar een halfvrijstaande woonboerderij met een overvloed aan ruimte – méér dan je ooit zou vermoeden vanaf de voorzijde? Laat je aangenaam verrassen door deze stijlvolle en perfect onderhouden woning op een perceel van maar liefst 5.157 m². Deze woning ligt aan de rand van het buitengebied, op korte afstand van de dorpskern van Hoeven én met uitstekende verbindingen richting Roosendaal, Breda en Antwerpen via de A58. Op korte afstand loopt een spoorlijn, maar dankzij de royale kavel, slimme situering en uitstekende isolatie genieten de bewoners hier in én om het huis volop van rust & privacy. Binnenin biedt de woning een zee aan ruimte: een riante living met keuken, een heerlijke tuinkamer, een luxe overkapping met aangrenzende multifunctionele ruimte én nog eens vier volwaardige slaapkamers op de eerste verdieping. De moderne badkamer op de begane grond zorgt daarnaast voor extra wooncomfort. Met energielabel A, 21 zonnepanelen is deze woning bovendien bijzonder energiezuinig. De fraai aangelegde tuin is tot in de puntjes verzorgd en biedt voor elk moment van de dag een perfecte plek. Meerdere terrassen nodigen uit om te genieten van zon, rust en uitzicht op het groene landschap. Of dat nu met een kop koffie in de ochtendzon is, of een glas wijn in de avondgloed. De jeu-de-boulesbaan, de vijver en het gazon maken het buitenleven hier compleet. Via het elektrische toegangshek rijd je de ruime oprit op met volop parkeergelegenheid. Deze leidt naar een driedubbele garage, loods en schuur. Perfect voor hobby’s, opslag of werken aan huis. Achterin het perceel ligt een ruim omheind weiland, ideaal voor het houden van dieren of als groene buffer die je vrijheid en privacy versterkt.

Ervaar het zelf op De Heul 44 – buiten wonen op zijn best!

Download de brochure voor meer informatie. 
Neem contact op Meer weten over deze woning?

Details van
de woning

Type
Halfvrijstaande woning
Bouwjaar
1985
Perceeloppervlakte
5157 m2
Woonoppervlakte
167 m2
Inhoud
730 m3
Isolatie
Dakisolatie Muurisolatie Vloerisolatie Dubbel glas
Energielabel
A