Koekoekstraat 59 - Sprundel

€ 595.000 k.k.
Brochure
Koekoekstraat 59 • 4714 AJ SPRUNDEL
Bram Esvelt
Jouw expert Bram Esvelt T 076-5937000 Contacteer Bram Esvelt

Meer over
deze woning

Aan de rustige Koekoekstraat in Sprundel ligt deze vrijstaande woning op een uitzonderlijk royaal perceel van 3.135 m². Een plek waar je elke dag het gevoel hebt buitenaf te wonen, terwijl je toch in het hart van het dorp bent.
Zodra je de achtertuin instapt, ontvouwt zich een wereld van rust, vrijheid en mogelijkheden. Kinderen kunnen hier eindeloos buitenspelen, terwijl er ook volop ruimte is voor het houden van pony’s, kippen of kleinvee. 
Voor de groene vingers is er een moestuin met kas, en de aanwezige paardenstallen, paddock en weilanden maken het plaatje compleet voor wie droomt van een hobbymatig buitenleven.
De sfeervolle houten veranda is dé plek voor lange avonden buiten, met uitzicht over het groen en volledige privacy. Alles ademt hier buitengevoel, zonder in te leveren op gemak. 
De dubbele oprit biedt ruime parkeergelegenheid, inclusief een brede zijtoegang die perfect is voor grotere voertuigen zoals een camper of trailer.
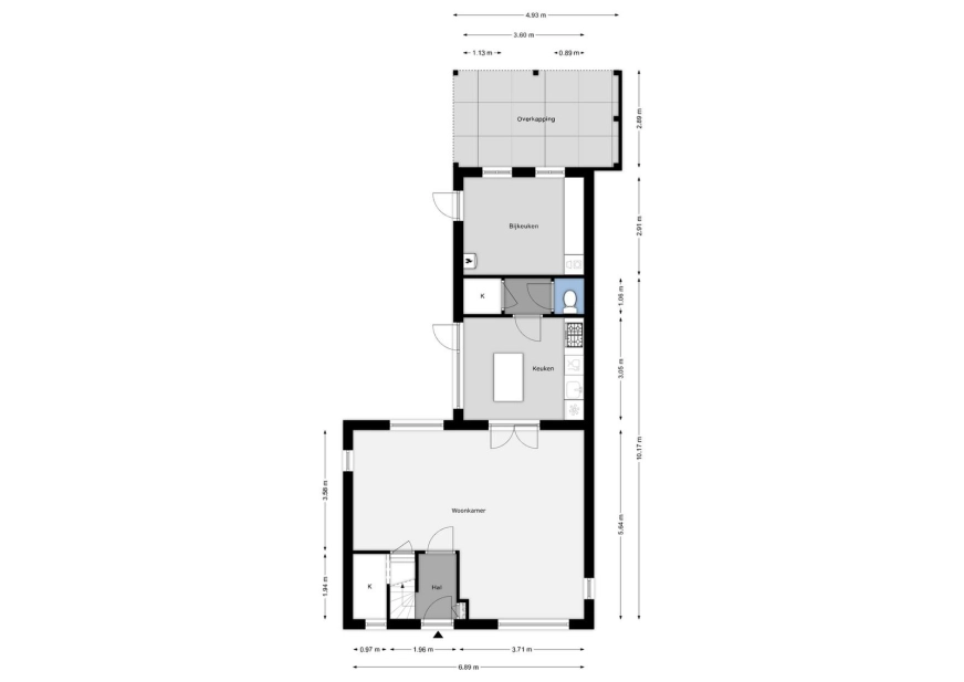
De woning zelf is verzorgd en praktisch ingedeeld, met een fijne verbinding tussen woonkamer en keuken. Boven zijn er drie slaapkamers en een compacte, lichte badkamer. De bijkeuken is via buiten bereikbaar en leent zich uitstekend als wasruimte of extra berging. 
Een zeldzame kans voor wie het dorpsleven wil combineren met volop buitenruimte, vrijheid en mogelijkheden. Hier leef je buiten, zonder het dorp te verlaten! 
Download de brochure voor meer informatie. Maak snel een afspraak voor een bezichtiging!
Neem contact op Meer weten over deze woning?

Details van
de woning

Type
Vrijstaande woning
Bouwjaar
1958
Perceeloppervlakte
3135 m2
Woonoppervlakte
105 m2
Inhoud
428 m3
Isolatie
Dakisolatie Hr glas
Energielabel
F