Turfstraat 12 - Sprundel

€ 925.000 k.k.
Brochure
Turfstraat 12 • 4714 RW SPRUNDEL
Bram Esvelt
Jouw expert Bram Esvelt T 076-5937000 Contacteer Bram Esvelt

Meer over
deze woning

Landelijk gelegen in het mooie buitengebied van Sprundel vind je deze vrijstaande woning met twee grote schuren, omgeven door rust, ruimte en weidse uitzichten. Met een perceel van maar liefst 32.035 m² (oftewel 3.20.35 hectare), uitgestrekte weilanden is dit een plek waar vrijheid en natuur 
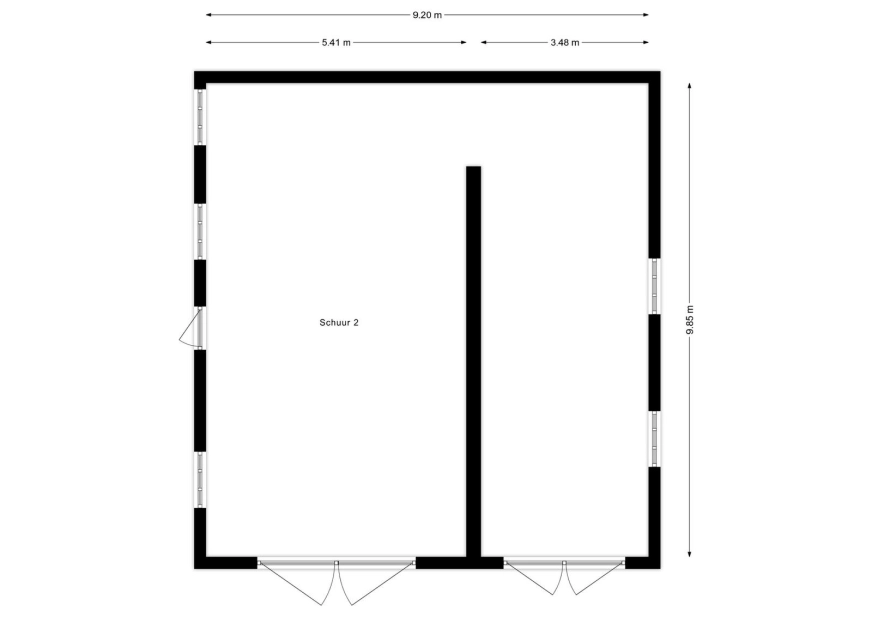
centraal staan. Terwijl je geniet van panoramisch uitzicht over de omliggende landerijen, liggen de voorzieningen van het dorp toch op slechts een paar minuten afstand. Natuurliefhebbers kunnen hun hart ophalen in het nabijgelegen schitterende natuurgebied De Pannenhoef; ideaal voor lange wandelingen, fietstochten óf gewoon om even helemaal op adem te komen. Kortom, een absolute top locatie! De woning zelf is degelijk gebouwd en biedt volop potentie, al is het interieur op onderdelen gedateerd. Maar juist dát opent de deur naar nieuwe mogelijkheden: een unieke kans om het geheel naar eigen smaak te moderniseren en om te toveren tot jouw droomhuis! Het royale perceel biedt volop ruimte voor het houden van paarden, kleinvee of het uitoefenen van hobby’s. De twee ruime schuren zijn uitermate geschikt voor stalling, opslag, een werkplaats of andere creatieve bestemmingen. De grote oprit biedt plaats aan meerdere auto’s, aanhangers of zelfs een camper. Dankzij het volwassen groen rondom het perceel geniet je hiervan optimale privacy, rust en het ultieme gevoel van vrij wonen op het platteland! 

Maak snel een afspraak voor een bezichtiging! 

Download de brochure voor meer informatie. 
Neem contact op Meer weten over deze woning?

Details van
de woning

Type
Vrijstaande woning
Bouwjaar
1963
Perceeloppervlakte
3 ha 20 a 35 ca
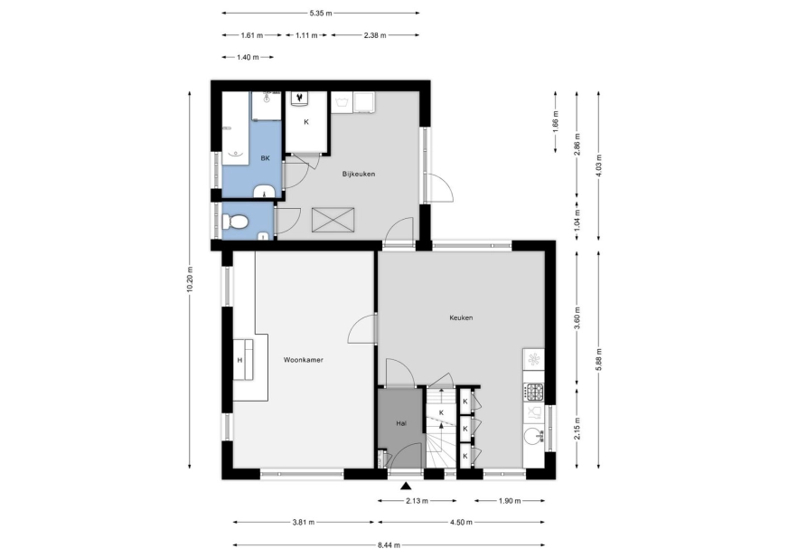
Woonoppervlakte
123 m2
Inhoud
490 m3
Isolatie
Muurisolatie Grotendeels dubbelglas Hr glas
Energielabel
E