Waterstraat 3 - Sprundel

€ 1.490.000 k.k.
Brochure
Waterstraat 3 • 4714 RM SPRUNDEL
Bram Esvelt
Jouw expert Bram Esvelt T 076-5937000 Contacteer Bram Esvelt

Meer over
deze woning

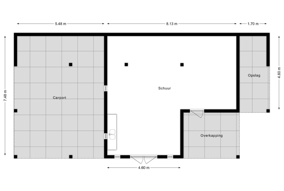
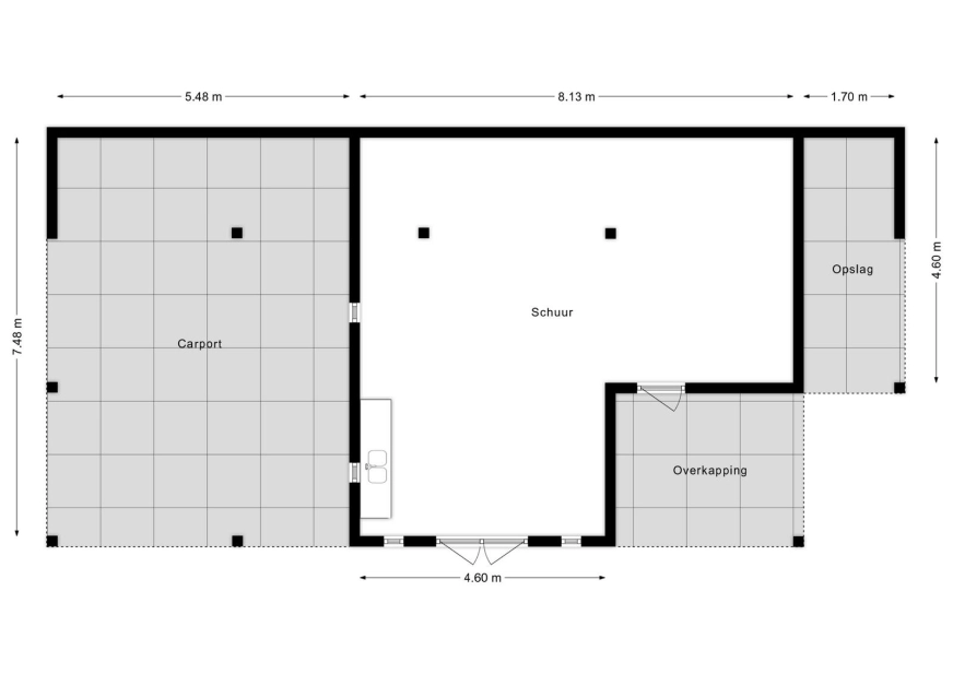
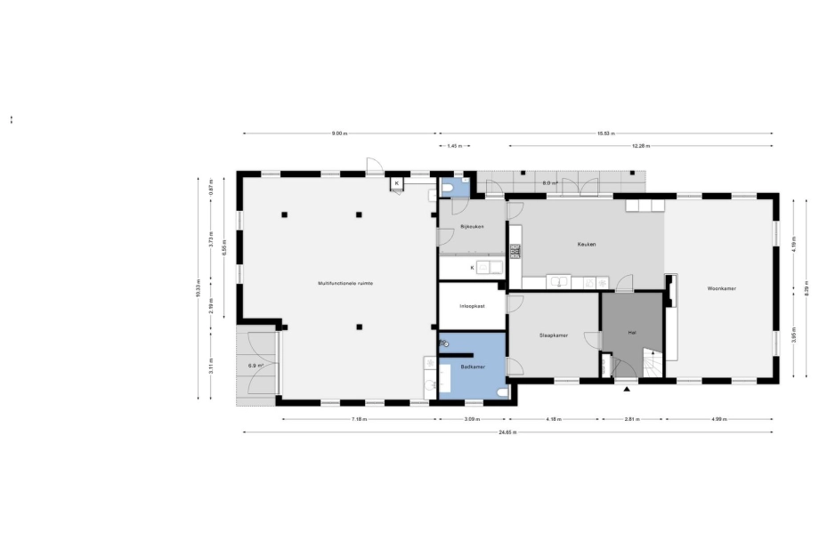
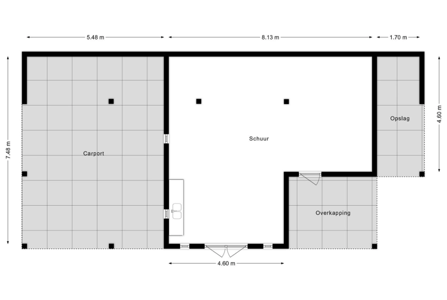
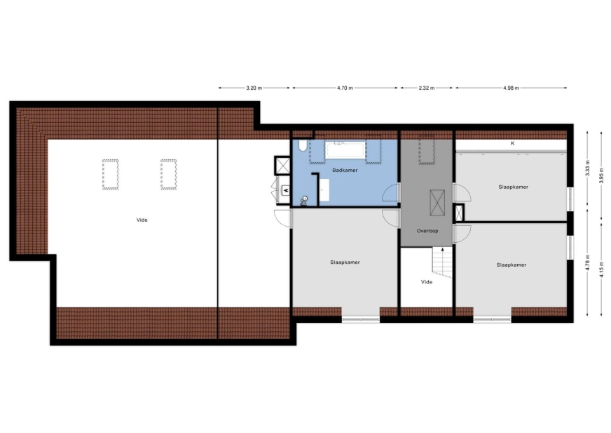
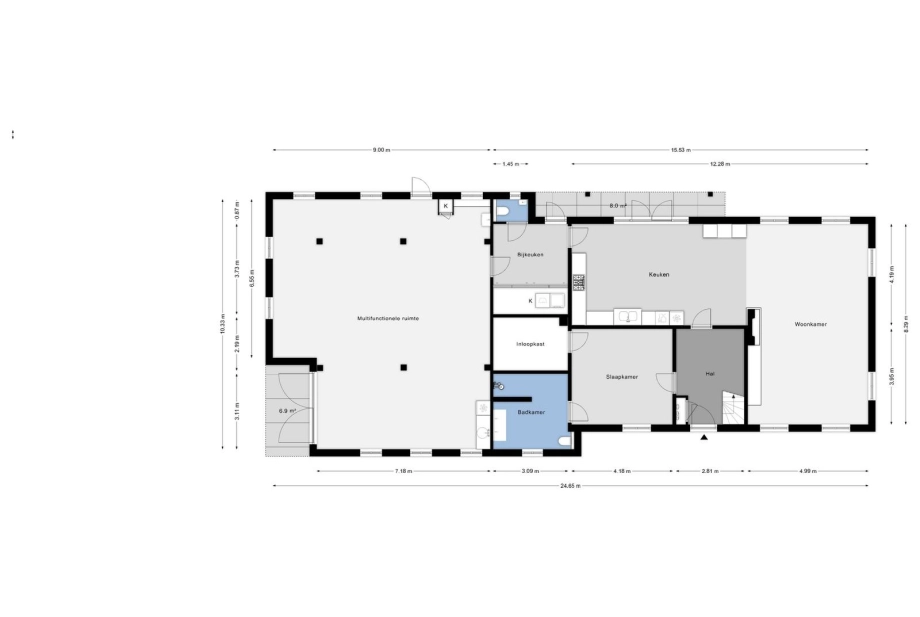
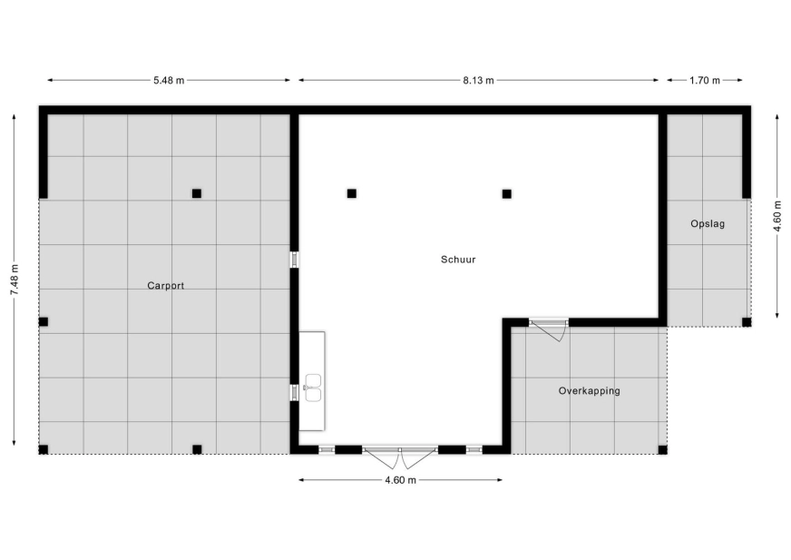
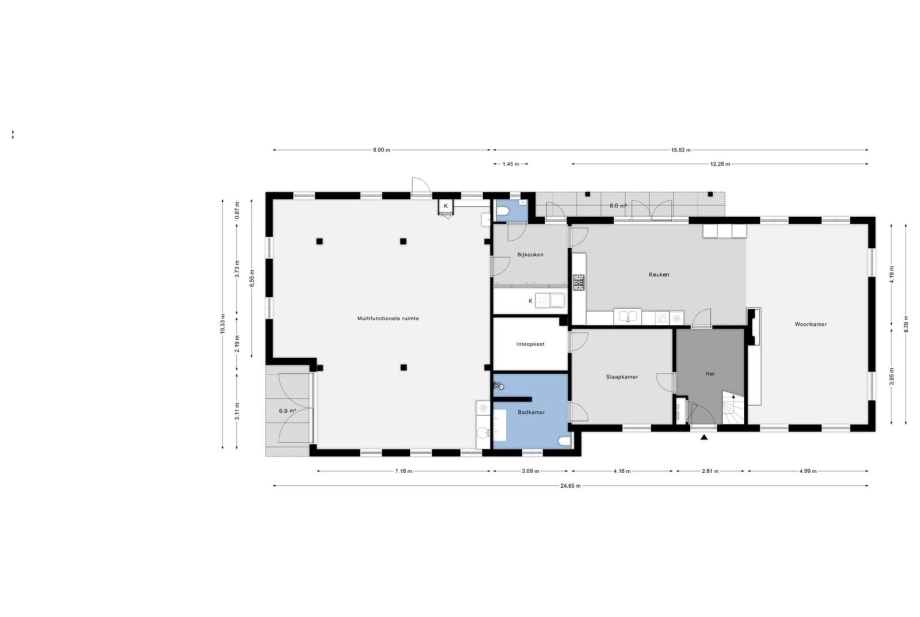
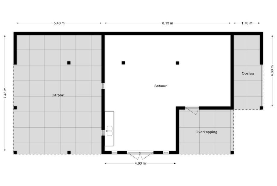
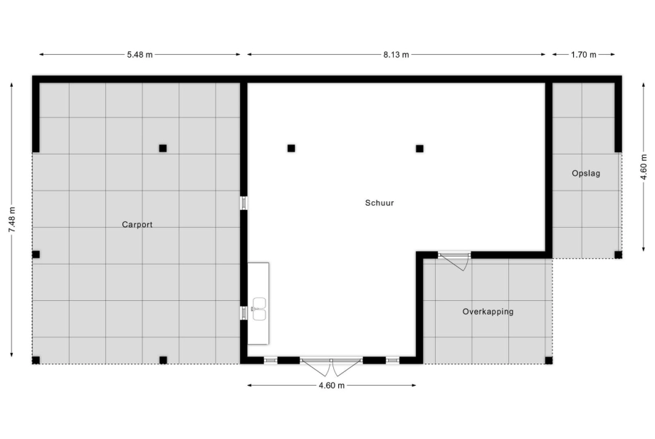
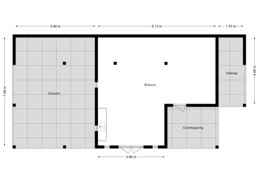
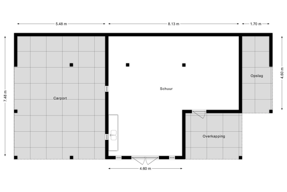
DEELNEMER NVM OPEN HUIZEN DAG ZATERDAG 4 OKTOBER VAN 11.00 UUR TOT 15.00 UUR. Rust, ruimte en exclusief wonen in het buitengebied maar toch op korte afstand van de dorpskern! Gelegen in een groenrijke omgeving, bevindt zich deze prachtige, energiezuinige én riet gedekte langgevelboerderij (A+) op een ruim perceel van 7.315 m². Een oase van rust en ruimte, waar je kunt genieten van de vrijheid en privacy van het buitenleven. Deze woning, gebouwd in 2015, combineert karakteristieke charme met modern wooncomfort en is tot in de puntjes afgewerkt. Op het perceel staat tevens een vrijstaande schuur uit 2016 met dubbele carport, die een scala aan mogelijkheden biedt voor hobby, werk of opslag. Daarnaast is deze boerderij uitermate geschikt voor het hobbymatig houden van paarden en/of kleinvee. Op vijf kilometer afstand bevindt zich natuurgebied Pannenhoef, waar rust en natuur samenkomen. De A58 is snel en eenvoudig bereikbaar, én de dorpskern ligt op slechts drie minuten fietsen, waardoor deze idyllische locatie optimaal is ontsloten. 

Download snel de brochure of maak een afspraak voor de bezichtiging!
Neem contact op Meer weten over deze woning?

Details van
de woning

Type
Vrijstaande woning
Bouwjaar
2015
Perceeloppervlakte
7315 m2
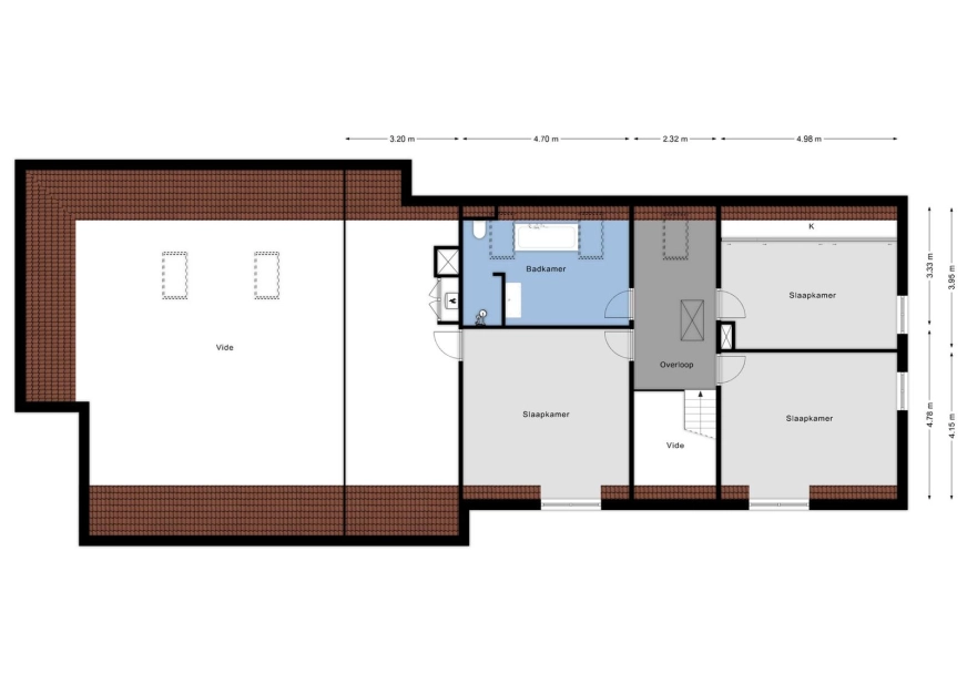
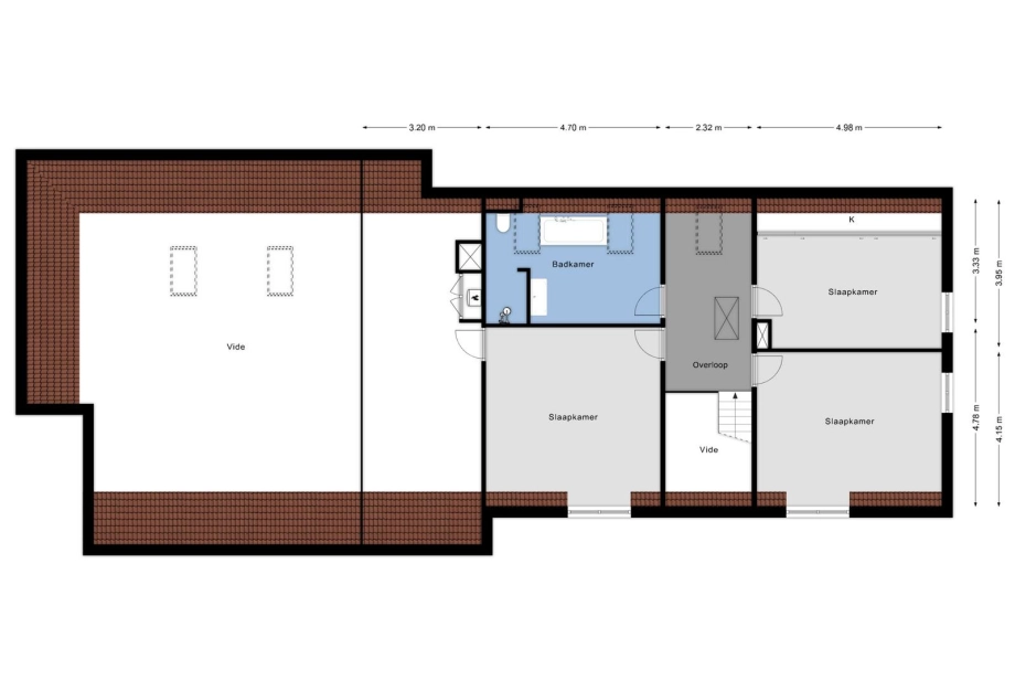
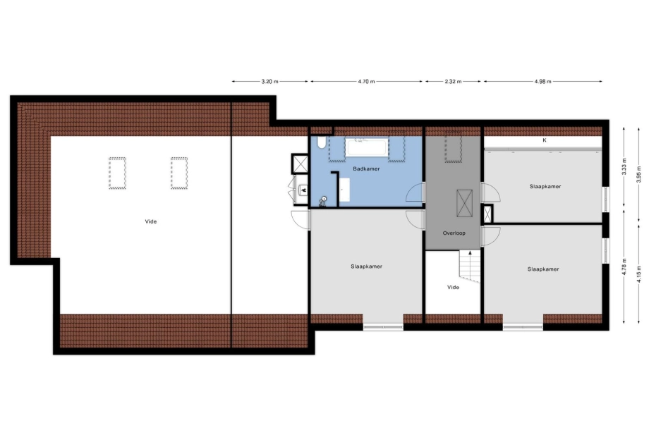
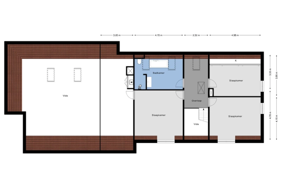
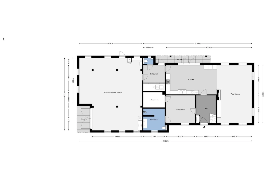
Woonoppervlakte
333 m2
Inhoud
1529 m3
Isolatie
Dakisolatie Muurisolatie Vloerisolatie Dubbel glas Hr glas
Energielabel
A+