Wilgenlaan 93 - Etten-leur

€ 375.000 k.k.
Brochure
Wilgenlaan Array • 4871 VB ETTEN-LEUR
Bram Esvelt
Jouw expert Bram Esvelt T 076-5937000 Contacteer Bram Esvelt

Meer over
deze woning

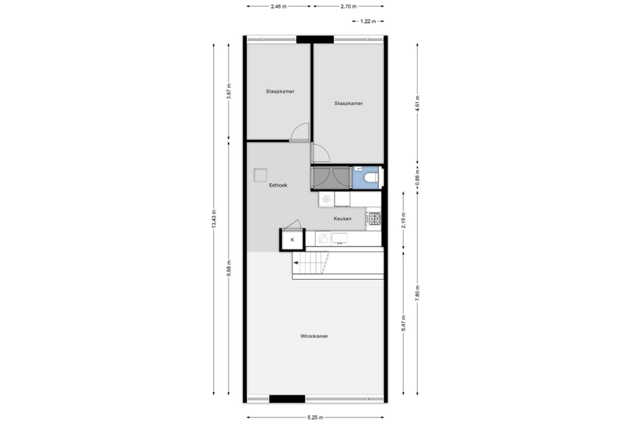
Gelegen op een rustige en kindvriendelijke locatie, met het Van Bergenplein op korte afstand waar je terecht kunt voor winkels en gezellige terrassen, staat deze instapklare drive in woning met inpandige garage en een ruime oprit. Ook een basisschool en diverse speelweides bevinden zich in de directe omgeving, waardoor je hier woont op een plek waar comfort en leefgemak vanzelfsprekend zijn. De woning verrast direct met een speelse indeling die volop mogelijkheden biedt om het geheel naar jouw eigen wensen in te richten. Binnen ervaar je een fijne combinatie van licht en ruimte. De royale living met open keuken vormt een centrale plek in huis. Grote raampartijen zorgen voor een prettige lichtinval en een open gevoel, terwijl de indeling uitnodigt om hier echt jouw thuis van te maken. Met meerdere slaapkamers en een multifunctionele ruimte heb je alle vrijheid om extra kamers te creëren, thuis te werken of een hobbyruimte in te richten. De achtertuin is verzorgd aangelegd en biedt een prettige afwisseling tussen groen en terras, waardoor je op ieder moment van de dag een fijne plek vindt. Dankzij de vrije ligging aan de achterzijde ervaar je hier veel rust en privacy, zonder inkijk van achterburen.

Download de brochure voor meer informatie en/of maak een afspraak voor een bezichtiging. 
Neem contact op Meer weten over deze woning?

Details van
de woning

Type
Tussenwoning
Bouwjaar
1973
Perceeloppervlakte
197 m2
Woonoppervlakte
117 m2
Inhoud
436 m3
Isolatie
Grotendeels dubbelglas
Energielabel
C